Skip to main content


AUGUSTUS'S HOUSE NEW MUSEUM - ROME 2012


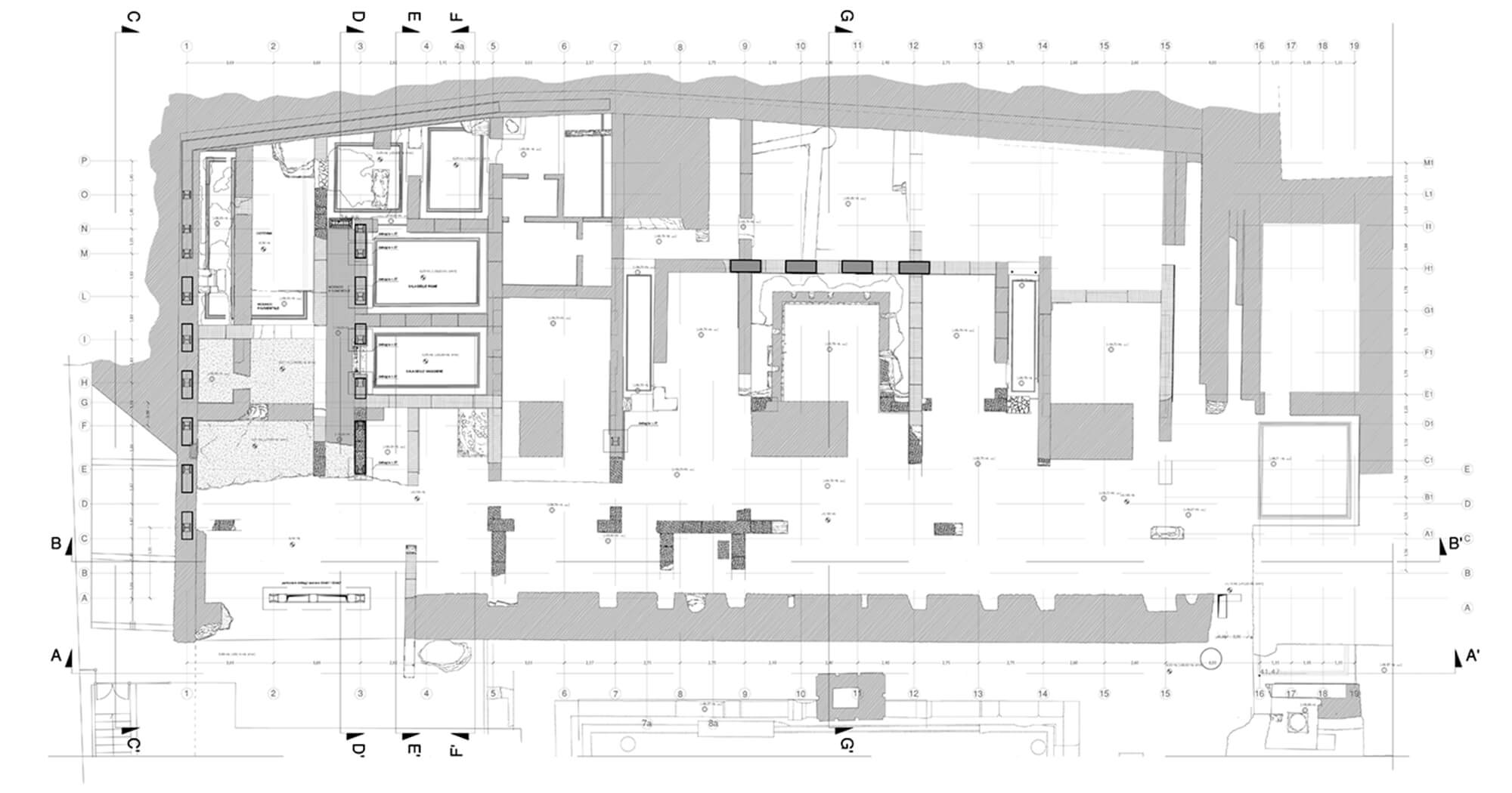
This multi-disciplinary and collaborative project overseen by the Superintendency of Rome requested consultation from our firm. Our studio provided multiple services: site analysis of the sensitive archeological site, ‘The House of Augustus’, surveys, landscape analysis, material-compatibility studies, visual impact studies, feasible circulation patterns and accessibility. Finally, we provided a façade _____ and structure for visitors and tourists. This design included an extensive green roof, structures for stormwater runoff hidden in the façade of the front entrance, non-destructive interior platforms for sightseeing and wayfinding. The challenges for this project were to create a design that supported visitors to this historical site but did not detract from the archeological ruins. ETC…



Exhibitions/Museum Landscape Receptive